Fika代々木上原

18.5万円~22万円 管理/共益費 15,000円

東京都渋谷区上原2丁目

千代田線「代々木上原」駅徒歩9分

小田急小田原線「代々木上原」駅徒歩9分

京王井の頭線「池ノ上」駅徒歩12分

価格
18.5万円~22万円 管理/共益費 15,000円
間取り/面積
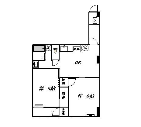
1LDK/33.07㎡~45.47㎡
所在地
東京都渋谷区上原2丁目
築年
2019年11月(築6年)
駐車
近隣
交通

千代田線代々木上原」駅 徒歩9分

小田急小田原線代々木上原」駅 徒歩9分

京王井の頭線池ノ上」駅 徒歩12分

Fika代々木上原の基本情報

物件名
Fika代々木上原
価格
18.5万円~22万円
管理/共益費
15,000円
築年月
2019年11月(築6年)
総戸数
33戸
所在地
東京都渋谷区上原2丁目
交通

千代田線代々木上原」駅 徒歩9分

小田急小田原線代々木上原」駅 徒歩9分

京王井の頭線池ノ上」駅 徒歩12分

Fika代々木上原の詳細情報

設備条件
  • エレベーター
  • 駐輪場
  • インターネット対応
  • オートロック
  • 宅配ボックス
  • 防犯カメラ
設備(その他)
    -
駐車場/月額
近隣/33,000円 200m
用途地域
-
戸数
33戸 / -
取引態様
一般媒介

Fika代々木上原で募集中の物件

  1. 1階

    13.51坪 (44.68㎡)

    20.2万円(14951.89円/坪)

  2. 4階

    13.75坪 (45.47㎡)

    22万円(16000円/坪)

  3. 5階

    10.00坪 (33.07㎡)

    18.5万円(18500円/坪)

近隣の物件

  1. 渋谷区神宮前6丁目

    2LDK (55.09㎡)

    35万円

  2. 渋谷区桜丘町

    1LDK (37.22㎡)

    15.6万円

  3. 渋谷区恵比寿3丁目

    2LDK (71.17㎡)

    37万円

  4. 渋谷区笹塚2丁目

    2DK (50.00㎡)

    14万円

Fika代々木上原

お気軽にお問い合わせください

LINEからお問い合わせ 無料お問い合わせ

藤原建設株式会社

03-3339-1122

10:00~18:00

(休:不定休)